Skip to main content
Toggle navigation
Digital Multi Control
print
Toggle navigation
Digital Multi Control
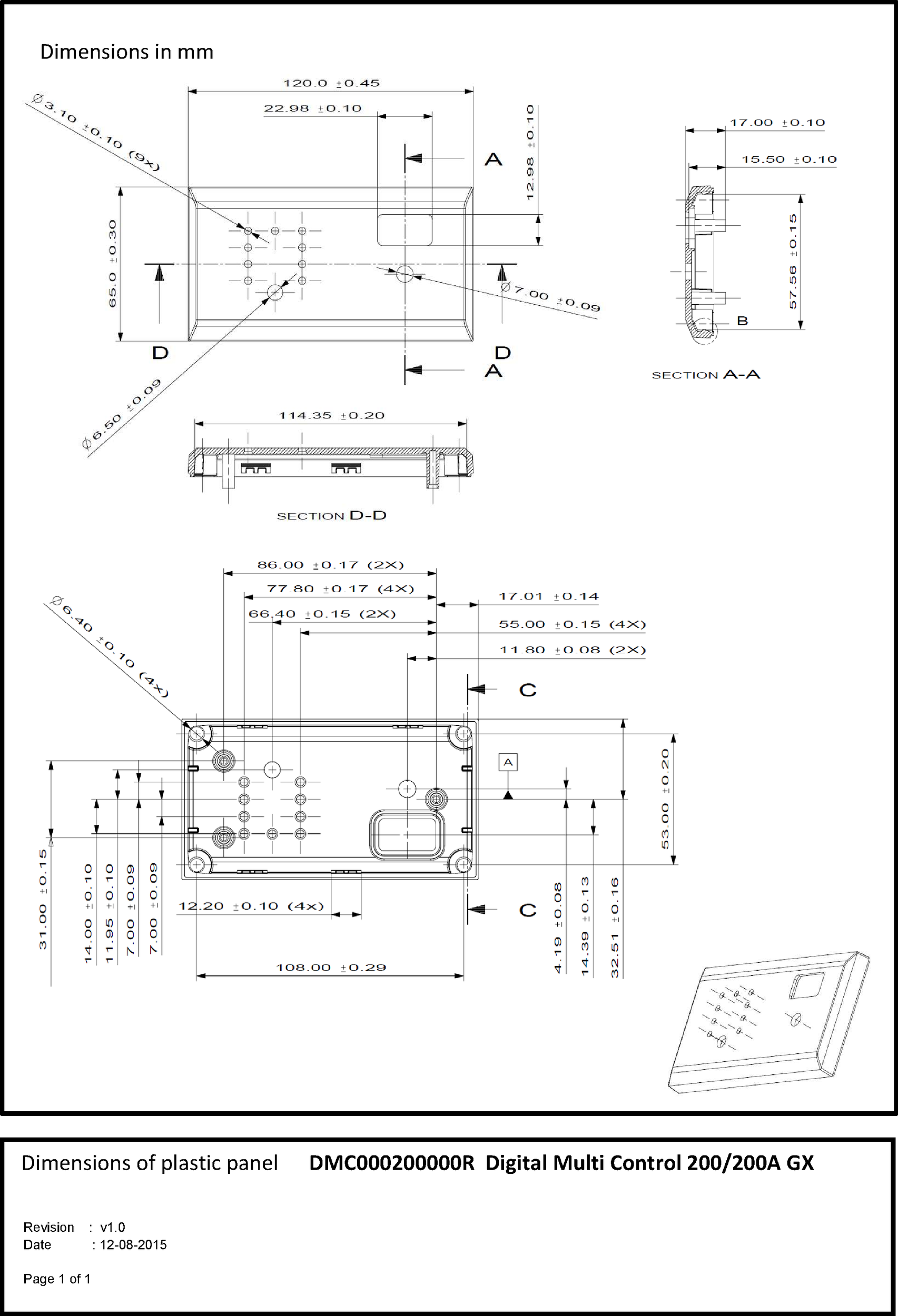
Dimensions
Prev
9
.
Dimensions
In this section
:
Search results
No results found
Prev